image/svg+xml Country Knolls ® A LAKESHORE COMMUNITY

Deerfield Beach's Premier, 55+ Manufactured Home Community

Custom Homes

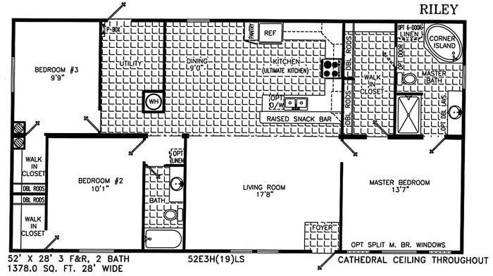
riley

Bookmark the permalink.

© 2023 Lakeshore Communities. All rights reserved.